Aller à :

  • Aller à la recherche
  • Aller au menu principal
  • Aller au contenu
0
  • Accueil
  • PRÉSENTATION
    • Le Rosenberg Immobilier
    • Notre équipe
  • ACHETER
    • Maisons
    • Appartements
    • Bureaux
    • Commerces
  • LOUER
    • Maisons
    • Appartements
  • Contact
  • HONORAIRES
0
  • Acheter De l'ancien
  • Louer
Créez votre alerte e-mail
Dans un rayon de
Budget
Mini €
Maxi €

    Faites estimer votre bien par un professionnel

    Estimer votre bien
    1. Accueil
    2. Vente
    3. Durlinsdorf
    4. Maison
    5. T7
    6. Durlinsdorf corps de ferme
    Exclusif
    Réf : 10521
    Maison
    Durlinsdorf corps de ferme
    Nombre de pièces 7
    Nombre de chambres 5
    Nombre de salles de bain 1
    TRAD_MELTEM_Superficieterrainenm² 1531 m²
    235 000 €

    Durlinsdorf corps de ferme Durlinsdorf (68480)

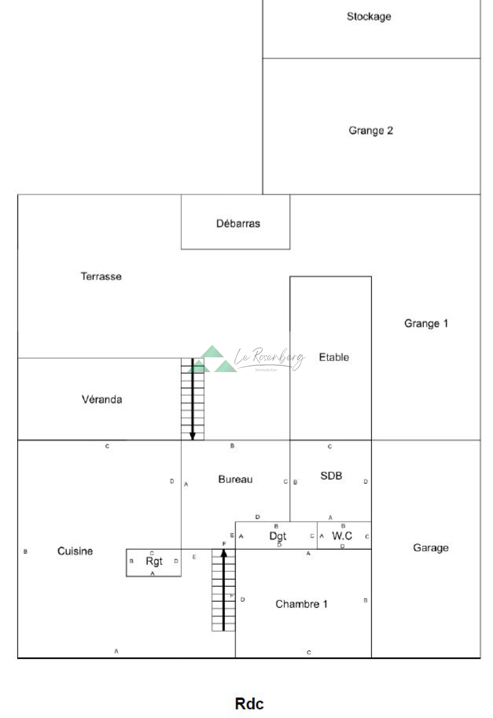
    Durlinsdorf, corps de ferme à rénover sur 15 ares. Possibilité de terrain supplémentaire 30 ares et total 45 ares.

    142m² habitables plus grange aménageable.

    RDC avec entrée, cuisine, véranda, salle de bain une pièce.

    Etage avec 3 pièces, accès grange (dalle béton). Combles avec une pièce et une salle d'eau possible.

    Cave, grange, garage, terrasse et jardin.

    Vidéo disponible sur demande.

    Contact 03 89 08 41 96

    Bien de l'agence de Ferrette. Etat des risques naturels : zone sismique moyenne 4

    • Général
    • Détails +
    • Financier
    • DPE
    • Quartier
    Caractérisque Valeurs
    Code postal 68480
    Surface habitable (m²) 142 m²
    surface terrain 1 531 m²
    Surface loi Carrez (m²) 142 m²
    Nombre de chambre(s) 5
    Nombre de pièces 7
    Nombre de niveaux 3
    Caractérisque Valeurs
    Nb de salle de bains 1
    Mode de chauffage Autre
    Type de chauffage Autre
    Format de chauffage Individuel
    Nombre de garage 2
    Année de construction 1900
    Caractérisque Valeurs
    Prix de vente honoraires TTC inclus 235 000 €
    Prix de vente honoraires TTC exclus 224 000 €
    Honoraires TTC à la charge acquéreur 4,91 %
    DPE GES
    • Commerces et santé
    • Loisirs
    • Ecoles
    • Transports
    • Pratique
    Cette offre
    vous intéresse

    * champs obligatoires

    Les informations recueillies sur ce formulaire sont enregistrées dans un fichier informatisé par La Boite Immo agissant comme Sous-traitant du traitement pour la gestion de la clientèle/prospects de l'Agence / du Réseau qui reste Responsable du Traitement de vos Données personnelles. La base légale du traitement repose sur l'intérêt légitime de l'Agence / du Réseau. Elles sont conservées jusqu'à demande de suppression et sont destinées à l'Agence / au Réseau. Conformément à la loi « informatique et libertés », vous disposez des droits d’accès, de rectification, d’effacement, d’opposition, de limitation et de portabilité de vos données. Vous pouvez retirer votre consentement à tout moment en contactant directement l’Agence / Le Réseau. Consultez le site https://cnil.fr/fr pour plus d’informations sur vos droits. Si vous estimez, après avoir contacté l'Agence / le Réseau, que vos droits « Informatique et Libertés » ne sont pas respectés, vous pouvez adresser une réclamation à la CNIL. Nous vous informons de l’existence de la liste d'opposition au démarchage téléphonique « Bloctel », sur laquelle vous pouvez vous inscrire ici : https://www.bloctel.gouv.fr Dans le cadre de la protection des Données personnelles, nous vous invitons à ne pas inscrire de Données sensibles dans le champ de saisie libre.
    Ce site est protégé par reCAPTCHA, les Politiques de Confidentialité et les Conditions d'Utilisation de Google s'appliquent.

    Partager le bien
    Nos outils
    Imprimer Imprimer
    Calculatrice financière

    * Champ obligatoire

    Partager l'annonce

    * champs obligatoires

    Les informations recueillies sur ce formulaire sont enregistrées dans un fichier informatisé par La Boite Immo agissant comme Sous-traitant du traitement pour la gestion de la clientèle/prospects de l'Agence / du Réseau qui reste Responsable du Traitement de vos Données personnelles. La base légale du traitement repose sur l'intérêt légitime de l'Agence / du Réseau. Elles sont conservées jusqu'à demande de suppression et sont destinées à l'Agence / au Réseau. Conformément à la loi « informatique et libertés », vous disposez des droits d’accès, de rectification, d’effacement, d’opposition, de limitation et de portabilité de vos données. Vous pouvez retirer votre consentement à tout moment en contactant directement l’Agence / Le Réseau. Consultez le site https://cnil.fr/fr pour plus d’informations sur vos droits. Si vous estimez, après avoir contacté l'Agence / le Réseau, que vos droits « Informatique et Libertés » ne sont pas respectés, vous pouvez adresser une réclamation à la CNIL. Nous vous informons de l’existence de la liste d'opposition au démarchage téléphonique « Bloctel », sur laquelle vous pouvez vous inscrire ici : https://www.bloctel.gouv.fr Dans le cadre de la protection des Données personnelles, nous vous invitons à ne pas inscrire de Données sensibles dans le champ de saisie libre.
    Ce site est protégé par reCAPTCHA, les Politiques de Confidentialité et les Conditions d'Utilisation de Google s'appliquent.

    Détail des diagnostics énergétiques
    DPE GES
    DPE ANCIENNE VERSION

    Partager avec vos proches

    Facebook Facebook
    Messenger Messenger
    Twitter Twitter
    WhatsApp WhatsApp
    LinkedIn LinkedIn
    Copier le lien Copier le lien
    Contacter
    l'agence

    Remplissez ce formulaire, nous ferons de notre mieux pour vous répondre dans les meilleurs délais.

    LE ROSENBERG IMMOBILIER FERRETTE
    03 89 08 41 96
    E-mail rosenbergimmobilier@gmail.com

    2 rue du Château 68480 Ferrette

    LE ROSENBERG IMMOBILIER HEGENHEIM
    03 89 69 20 01
    E-mail contact@rosenbergimmobilier.fr

    20 rue de Hagenthal 68220 Hégenheim

    TRAD_MELTEM_voscoordonnees
    TRAD_MELTEM_voredemande
    Règlementation

    * Champ obligatoire

    Les informations recueillies sur ce formulaire sont enregistrées dans un fichier informatisé par La Boite Immo agissant comme Sous-traitant du traitement pour la gestion de la clientèle/prospects de l'Agence / du Réseau qui reste Responsable du Traitement de vos Données personnelles. La base légale du traitement repose sur l'intérêt légitime de l'Agence / du Réseau. Elles sont conservées jusqu'à demande de suppression et sont destinées à l'Agence / au Réseau. Conformément à la loi « informatique et libertés », vous disposez des droits d’accès, de rectification, d’effacement, d’opposition, de limitation et de portabilité de vos données. Vous pouvez retirer votre consentement à tout moment en contactant directement l’Agence / Le Réseau. Consultez le site https://cnil.fr/fr pour plus d’informations sur vos droits. Si vous estimez, après avoir contacté l'Agence / le Réseau, que vos droits « Informatique et Libertés » ne sont pas respectés, vous pouvez adresser une réclamation à la CNIL. Nous vous informons de l’existence de la liste d'opposition au démarchage téléphonique « Bloctel », sur laquelle vous pouvez vous inscrire ici : https://www.bloctel.gouv.fr Dans le cadre de la protection des Données personnelles, nous vous invitons à ne pas inscrire de Données sensibles dans le champ de saisie libre.
    Ce site est protégé par reCAPTCHA, les Politiques de Confidentialité et les Conditions d'Utilisation de Google s'appliquent.

    Se connecter
    Espace propriétaire
    Page d'accueil
    Adhérents

    © 2026 | Tous droits réservés | Traduction powered by Google |

    • Nos honoraires
    • Plan du site
    • Mentions légales
    • Admin
    • Nos partenaires
    • Politique RGPD

    Comme beaucoup, notre site utilise les cookies

    On aimerait vous accompagner pendant votre visite. En poursuivant, vous acceptez l'utilisation des cookies par ce site, afin de vous proposer des contenus adaptés et réaliser des statistiques !

    Paramétrer

    Statistiques de visites

    Pour améliorer votre expérience, on a besoin de savoir ce qui vous intéresse !
    Les données récoltées sont anonymisées.

    ?

    Google Analytics

    requis
    ?

    Google Tag Mananger

    requis
    En savoir plus
    • Acheter De l'ancien
    • Louer
    Créez votre alerte e-mail
    Dans un rayon de
      Budget
      Mini €
      Maxi €
      Surface
      Mini m²
      Maxi m²
      Surface terrain
      Mini m²
      Maxi m²

      Particularites

      Equipements

      Exposition

      Afficher les biens

      Faites estimer votre bien par un professionnel

      Estimer votre bien