Aller à :

  • Aller à la recherche
  • Aller au menu principal
  • Aller au contenu
0
  • Accueil
  • PRÉSENTATION
    • Le Rosenberg Immobilier
    • Notre équipe
  • ACHETER
    • Maisons
    • Appartements
    • Bureaux
    • Commerces
  • LOUER
    • Maisons
    • Appartements
  • Contact
  • HONORAIRES
0
  • Acheter De l'ancien
  • Louer
Créez votre alerte e-mail
Dans un rayon de
Budget
Mini €
Maxi €

    Faites estimer votre bien par un professionnel

    Estimer votre bien
    1. Accueil
    2. Vente
    3. Hegenheim
    4. Terrain a batir
    Réf : MG23355
    Terrain à batir
    terrain constructible de 11 ares proche centre-village
    350 000 €

    terrain constructible de 11 ares proche centre-village Hégenheim (68220)

    Localisation stratégique de cette belle parcelle de 11,38 ares (14,5 x 78m) idéalement exposée dans un environnement chaleureux aux portes de Bâle et proche du centre-village.

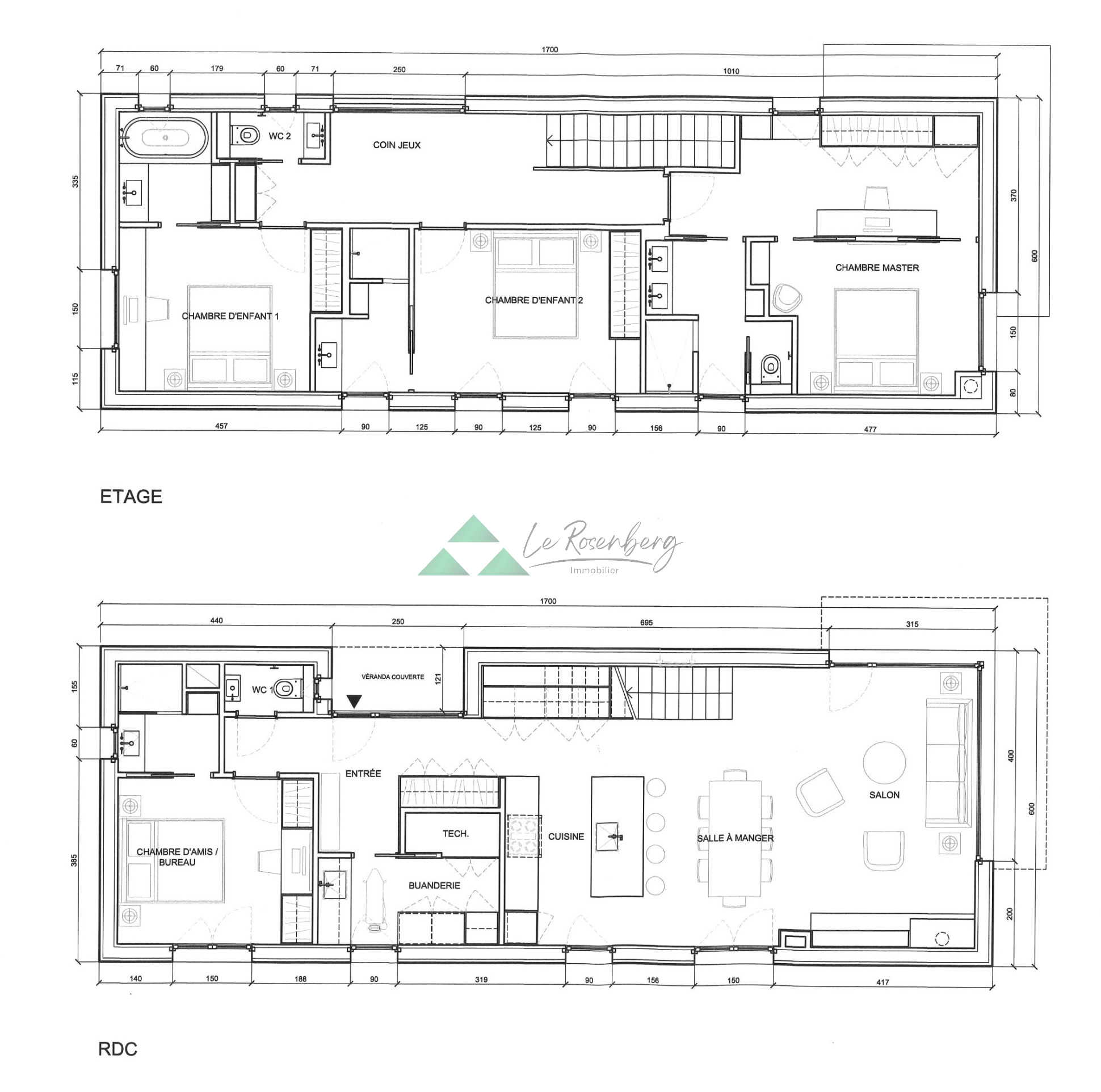
    Très beau projet d’architecte de 164 m² sur 2 niveaux, espaces contemporains pensés pour une vie familiale moderne, avec 4 chambres dont une suite master avec dressing et coin bureau, 3 salles de bains, toilettes invité, cuisine avec îlot ouvert sur salle à manger et salon spacieux + annexe carport de 30 m².

    Possibilité de transformer une chambre avec accès indépendant sur l’extérieur pour l’exercice d’une profession libérale.

    Permis de construire obtenu et purgé de tout recours.

    Plans validés par un Bureau Fluides (RE 2020).

    Toutes les viabilités sont dans la rue de Bourgfelden.

    Libre de constructeur.

    Aucun coût ou frais supplémentaire pour le permis de construire inclus dans le prix de vente du terrain.

    Pour tous renseignements, contactez Muriel Goetschy au 06 29 52 31 68.


    Les informations sur les risques auxquels ce bien est exposé sont disponibles sur le site Géorisques
    • Général
    • Détails +
    • Copropriété
    • Financier
    • Quartier
    Caractérisque Valeurs
    Code postal 68220
    surface terrain 1 138 m²
    Terrain constructible OUI
    Caractérisque Valeurs
    Terrain Viabilisé NON
    Caractérisque Valeurs
    Copropriété NON
    Caractérisque Valeurs
    Prix de vente 350 000 €
    Les honoraires d'agence seront intégralement à la charge du vendeur  
    • Commerces et santé
    • Loisirs
    • Ecoles
    • Transports
    • Pratique
    Cette offre
    vous intéresse

    * champs obligatoires

    Les informations recueillies sur ce formulaire sont enregistrées dans un fichier informatisé par La Boite Immo agissant comme Sous-traitant du traitement pour la gestion de la clientèle/prospects de l'Agence / du Réseau qui reste Responsable du Traitement de vos Données personnelles. La base légale du traitement repose sur l'intérêt légitime de l'Agence / du Réseau. Elles sont conservées jusqu'à demande de suppression et sont destinées à l'Agence / au Réseau. Conformément à la loi « informatique et libertés », vous disposez des droits d’accès, de rectification, d’effacement, d’opposition, de limitation et de portabilité de vos données. Vous pouvez retirer votre consentement à tout moment en contactant directement l’Agence / Le Réseau. Consultez le site https://cnil.fr/fr pour plus d’informations sur vos droits. Si vous estimez, après avoir contacté l'Agence / le Réseau, que vos droits « Informatique et Libertés » ne sont pas respectés, vous pouvez adresser une réclamation à la CNIL. Nous vous informons de l’existence de la liste d'opposition au démarchage téléphonique « Bloctel », sur laquelle vous pouvez vous inscrire ici : https://www.bloctel.gouv.fr Dans le cadre de la protection des Données personnelles, nous vous invitons à ne pas inscrire de Données sensibles dans le champ de saisie libre.
    Ce site est protégé par reCAPTCHA, les Politiques de Confidentialité et les Conditions d'Utilisation de Google s'appliquent.

    Partager le bien
    Nos outils
    Imprimer Imprimer
    Calculatrice financière

    * Champ obligatoire

    Partager l'annonce

    * champs obligatoires

    Les informations recueillies sur ce formulaire sont enregistrées dans un fichier informatisé par La Boite Immo agissant comme Sous-traitant du traitement pour la gestion de la clientèle/prospects de l'Agence / du Réseau qui reste Responsable du Traitement de vos Données personnelles. La base légale du traitement repose sur l'intérêt légitime de l'Agence / du Réseau. Elles sont conservées jusqu'à demande de suppression et sont destinées à l'Agence / au Réseau. Conformément à la loi « informatique et libertés », vous disposez des droits d’accès, de rectification, d’effacement, d’opposition, de limitation et de portabilité de vos données. Vous pouvez retirer votre consentement à tout moment en contactant directement l’Agence / Le Réseau. Consultez le site https://cnil.fr/fr pour plus d’informations sur vos droits. Si vous estimez, après avoir contacté l'Agence / le Réseau, que vos droits « Informatique et Libertés » ne sont pas respectés, vous pouvez adresser une réclamation à la CNIL. Nous vous informons de l’existence de la liste d'opposition au démarchage téléphonique « Bloctel », sur laquelle vous pouvez vous inscrire ici : https://www.bloctel.gouv.fr Dans le cadre de la protection des Données personnelles, nous vous invitons à ne pas inscrire de Données sensibles dans le champ de saisie libre.
    Ce site est protégé par reCAPTCHA, les Politiques de Confidentialité et les Conditions d'Utilisation de Google s'appliquent.

    Détail des diagnostics énergétiques
    DPE GES
    DPE ANCIENNE VERSION

    Partager avec vos proches

    Facebook Facebook
    Messenger Messenger
    Twitter Twitter
    WhatsApp WhatsApp
    LinkedIn LinkedIn
    Copier le lien Copier le lien
    Contacter
    l'agence

    Remplissez ce formulaire, nous ferons de notre mieux pour vous répondre dans les meilleurs délais.

    LE ROSENBERG IMMOBILIER FERRETTE
    03 89 08 41 96
    E-mail rosenbergimmobilier@gmail.com

    2 rue du Château 68480 Ferrette

    LE ROSENBERG IMMOBILIER HEGENHEIM
    03 89 69 20 01
    E-mail contact@rosenbergimmobilier.fr

    20 rue de Hagenthal 68220 Hégenheim

    TRAD_MELTEM_voscoordonnees
    TRAD_MELTEM_voredemande
    Règlementation

    * Champ obligatoire

    Les informations recueillies sur ce formulaire sont enregistrées dans un fichier informatisé par La Boite Immo agissant comme Sous-traitant du traitement pour la gestion de la clientèle/prospects de l'Agence / du Réseau qui reste Responsable du Traitement de vos Données personnelles. La base légale du traitement repose sur l'intérêt légitime de l'Agence / du Réseau. Elles sont conservées jusqu'à demande de suppression et sont destinées à l'Agence / au Réseau. Conformément à la loi « informatique et libertés », vous disposez des droits d’accès, de rectification, d’effacement, d’opposition, de limitation et de portabilité de vos données. Vous pouvez retirer votre consentement à tout moment en contactant directement l’Agence / Le Réseau. Consultez le site https://cnil.fr/fr pour plus d’informations sur vos droits. Si vous estimez, après avoir contacté l'Agence / le Réseau, que vos droits « Informatique et Libertés » ne sont pas respectés, vous pouvez adresser une réclamation à la CNIL. Nous vous informons de l’existence de la liste d'opposition au démarchage téléphonique « Bloctel », sur laquelle vous pouvez vous inscrire ici : https://www.bloctel.gouv.fr Dans le cadre de la protection des Données personnelles, nous vous invitons à ne pas inscrire de Données sensibles dans le champ de saisie libre.
    Ce site est protégé par reCAPTCHA, les Politiques de Confidentialité et les Conditions d'Utilisation de Google s'appliquent.

    Se connecter
    Espace propriétaire
    Page d'accueil
    Adhérents

    © 2026 | Tous droits réservés | Traduction powered by Google |

    • Nos honoraires
    • Plan du site
    • Mentions légales
    • Admin
    • Nos partenaires
    • Politique RGPD

    Comme beaucoup, notre site utilise les cookies

    On aimerait vous accompagner pendant votre visite. En poursuivant, vous acceptez l'utilisation des cookies par ce site, afin de vous proposer des contenus adaptés et réaliser des statistiques !

    Paramétrer

    Statistiques de visites

    Pour améliorer votre expérience, on a besoin de savoir ce qui vous intéresse !
    Les données récoltées sont anonymisées.

    ?

    Google Analytics

    requis
    ?

    Google Tag Mananger

    requis
    En savoir plus
    • Acheter De l'ancien
    • Louer
    Créez votre alerte e-mail
    Dans un rayon de
      Budget
      Mini €
      Maxi €
      Surface
      Mini m²
      Maxi m²

      Particularites

      Afficher les biens

      Faites estimer votre bien par un professionnel

      Estimer votre bien